
Erste Etage

Erstes Obergeschoss mit Aufgang zum Zwischengeschoss

Ausstellungsfläche im ersten Obergeschoss.
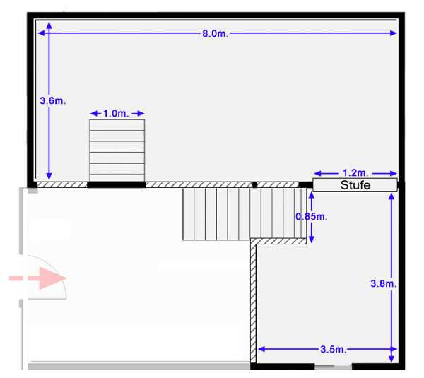
Auf dem Plan unten rechts Bereich mit Geländer und Blick auf das Erdgeschoss.

Erstes Obergeschoss
Erste Etage
Erstes Obergeschoss mit Aufgang zum Zwischengeschoss
Ausstellungsfläche im ersten Obergeschoss.
|

